top of page

​物件情報

下からの塔

DEPOC おススメ 物件情報

キテラタウン調布
AdobeStock_339873663.jpeg
AdobeStock_12482427_Preview.jpeg
AdobeStock_12482427_Preview.jpeg

物件No

h東京-2

​物件名

キテラタウン調布

住所

東京都調布市菊野台1-33-3

交通

京王線「柴崎駅」徒歩4分/「つづじヶ丘駅」徒歩8分

募集科目

・内科・小児科・精神科・整形外科・婦人科・眼科・耳鼻咽喉科・皮膚科・泌尿器科・その他

​竣工

2017年4月

​構造

3階建て

​設備

EV・ES

駐車場

・駐車場400台
・駐輪場415台

事業計画

引渡状態

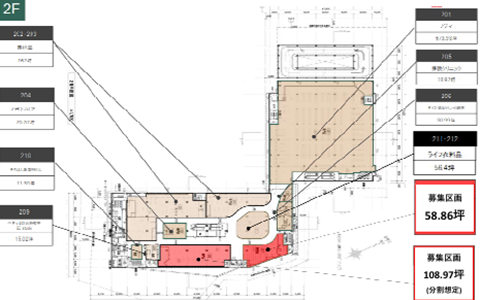
募集区画

2F:約40~50坪(残り1区画)

賃料

15,000円/坪~18,000円/坪予定

敷金

契約形態

備考

・整形外科と小児科から先行お申込み有り
・1.5km診療圏数値 内科(53.3人/日)、小児科(19.3人/日)、精神科(23.1人/日)、整形外科(117.1人/日)、脳神経外科(54.9人/日)、皮膚科(34.4人/日)、泌尿器科(25.0人/日)、産婦人科(70.7人/日)、耳鼻咽喉科(415.5人/日)、眼科(62.7人/日)
*常住人口ベース

特徴・おすすめポイント

・スーパーライフ・ダイソー・サイゼリヤ等集客力のあるテナントが入居しており、早期の集患が見込めます。

・入居時期応相談

・駅近で甲州街道沿いのショッピングセンターの2階でのモール計画

AdobeStock_12482427_Preview.jpeg
AdobeStock_12482427_Preview.jpeg
AdobeStock_12482427_Preview.jpeg
近くの物件
bottom of page